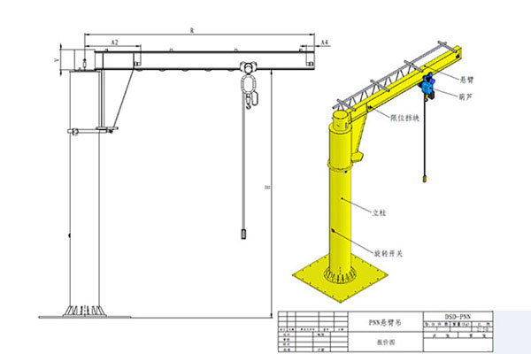
Cantilever Crane